Zwei Etagen, zwei Terrassen
Hier wurde durch exzellente Zusammenarbeit zwischen den Bauherren, den Gemeinden und unserer Architektin ein neuer Lebensraum für zwei Familien erschaffen, welcher sich harmonisch in die Landschaft einpasst. Durch die Hanglage war ein sehr großer Eingangsbereich möglich, der außerdem Platz für Fahrräder, Wasch- und Abstellräume bietet. Die bodentiefen Fenster, mit Blick ins Grüne, verleiten zum Träumen und Entspannen.
Das sagen die Bauherren:
„Unsere Mieter sind sehr glücklich hier und finden den Grundriss der Wohnungen sehr gelungen.“
Auf einen Blick
| Anzahl Wohnungen: 2 |
| Hausgrundfläche: 117,00 m2 |
| Nettogrundfläche (DIN 277): 198,00 m2 |
| Erdgeschoss: 99,00 m2 |
| Dachgeschoss: 99,00 m2 |
| Kniestock 130 cm |
| Dachform: Satteldach |
| Dachneigung: 35° |
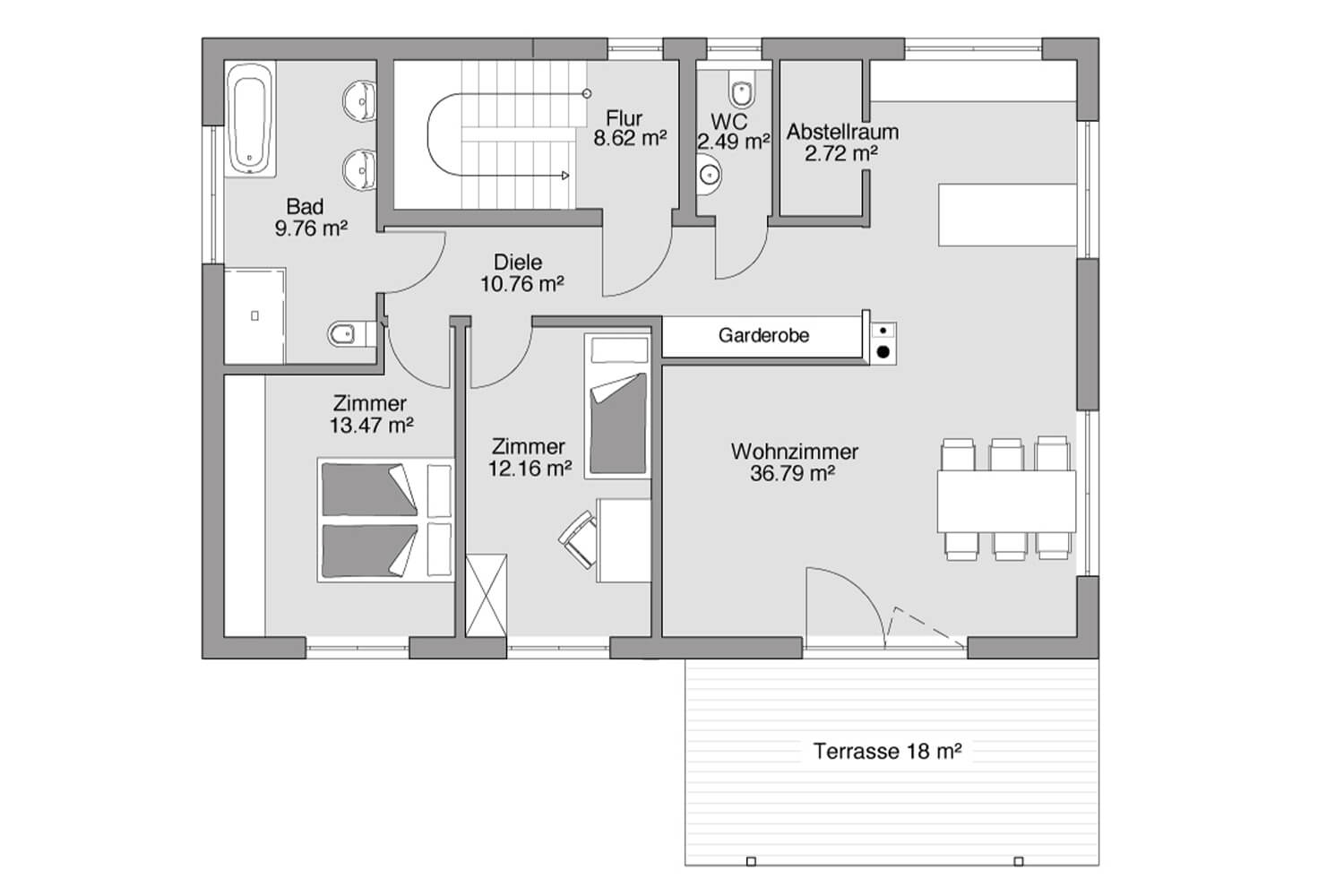
Erdgeschoss
Grundriss Variante 1
OTT HAUS – Gesund wohnen
Das Besondere an jedem OTT HAUS ist ein angenehmes Raumklima, weil die Wände Feuchtigkeit aufnehmen und wieder abgeben als würden sie atmen. Jedes Haus ist energiesparend gebaut, auf Wunsch kann auch eine höhere Energie-Effizienzklasse gewählt werden, die durch Fördermittel gedeckt wird.
Hier finden Sie 8 gesunde Gründe, mit uns zu bauen
Sie möchten mehr erfahren?
Kontaktieren Sie uns oder kommen Sie vorbei.

OTT HAUS, Untere Lußstr. 27, 88271 Wilhelmsdorf, mail@otthaus.de












