Einfamilienhaus Kißlegg

Geschmackvolle und helle Räume

Die große Küche zeugt von der Leidenschaft der Bauherren fürs Kochen. Kommen Gäste, kann hier der Außenbereich zum „Gästezimmer“ werden. Die Architektur ermöglicht einen freien Blick in die Natur von allen Seiten. Durch tief angebrachte Lichtbänder wurde auch für kleinere Kinder der Blick in den Garten möglich gemacht. Die Kinderzimmer sind dadurch extrem luftig und durscheinend. Die Vielzahl der Lichtbänder, die durchlaufen, erschaffen eine Transparenz, die man sonst nicht hätte.

Das sagen die Bauherren:

„Der vereinbarte Preis hat perfekt gepasst.“

Auf einen Blick

Anzahl Zimmer: 5
Hausgrundfläche: 117,40 m2
Nettogrundfläche (DIN 277): 137,00 m2
Erdgeschoss: 68,50 m2
Dachgeschoss: 65,80 m2
Kniestock 180 cm
Dachform: Satteldach
Dachneigung: 25°

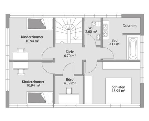
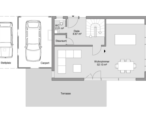
Erdgeschoss

Grundriss Variante 1

OTT HAUS – Gesund wohnen

Das Besondere an jedem OTT HAUS ist ein angenehmes Raumklima, weil die Wände Feuchtigkeit aufnehmen und wieder abgeben als würden sie atmen. Jedes Haus ist energiesparend gebaut, auf Wunsch kann auch eine höhere Energie-Effizienzklasse gewählt werden, die durch Fördermittel gedeckt wird.

Hier finden Sie 8 gesunde Gründe, mit uns zu bauen

Sie möchten mehr erfahren?
Kontaktieren Sie uns oder kommen Sie vorbei.