Kompaktes Wohnen für mehrere Generationen
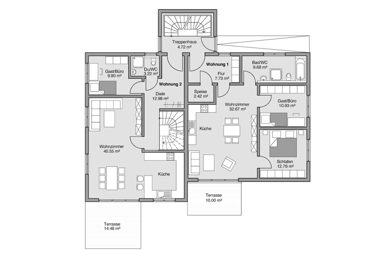
Auf einer relativ kleinen Grundstücksfläche sollte ein Mehrfamilienhaus mit fünf Wohnungen entstehen. Es sollte Platz bieten für drei Generationen und für zwei weitere Wohnungen zur Vermietung. Das zentral angebaute Treppenhaus ist das Herzstück der Anlage, außerdem Zugang zur Tiefgarage und gibt dem Ganzen einen modernen Charakter. Der Carport überdacht den Eingangsbereich mit, sodass die Bewohner trockenen Fußes ins Haus kommen. Jede Wohnung hat zur Südseite hin Zugang auf die Terrasse oder einen großzügigen Balkon. Mit diesem Projekt wurde der Wunsch der Bauherren erfüllt, zusammen unter einem Dach zu wohnen und den Vorteil von Nähe zu haben, als auch die eigenen Privatsphäre genießen zu können.
Das sagen die Bauherren:
„Gemeinsames Wohnen ohne Abstriche.“
Auf einen Blick
| Anzahl Wohnungen: 5 |
| Hausgrundfläche: 173,50 m2 |
| Nettogrundfläche (DIN 277): 435,00 m2 |
| Kniestock 105 cm |
| Dachform: Satteldach |
| Dachneigung: 30° |
OTT HAUS – Gesund wohnen
Das Besondere an jedem OTT HAUS ist ein angenehmes Raumklima, weil die Wände Feuchtigkeit aufnehmen und wieder abgeben als würden sie atmen. Jedes Haus ist energiesparend gebaut, auf Wunsch kann auch eine höhere Energie-Effizienzklasse gewählt werden, die durch Fördermittel gedeckt wird.
Hier finden Sie 8 gesunde Gründe, mit uns zu bauen
Sie möchten mehr erfahren?
Kontaktieren Sie uns oder kommen Sie vorbei.

OTT HAUS, Untere Lußstr. 27, 88271 Wilhelmsdorf, mail@otthaus.de














