Außergewöhnlich wohnen
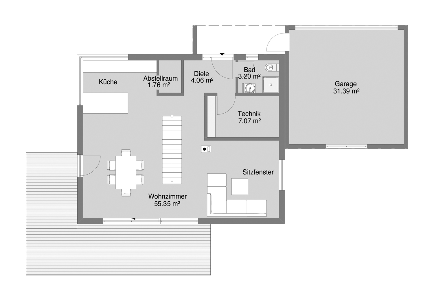
Ein offen gestalteter Wohnbereich mit einem großen Sitzfenster gibt diesem Haus ein großzügiges Wohngefühl. Ein separater Schlafbereich mit Ankleide (und eigenem Bad) für die Eltern und zwei Kinderzimmer mit Kinderbad geben im oberen Stockwerk individuellen Freiraum für jedes Familienmitglied.
Unsere Philosophie: Wir kümmern uns um einen reibungslosen Ablauf, Sie ziehen pünktlich ins neue Eigenheim. Kein Stress beim Hausbau. Auf uns können Sie sich verlassen.
Geeignet für Familien mit 2 Kindern
| Anzahl Zimmer: 4 |
| Hausgrundfläche: 84,50 m2 |
| Nettogrundfläche (DIN 277): 141,00 m2 |
| Erdgeschoss: 69,50 m2 |
| Dachgeschoss: 74,50 m2 |
| Kniestock: 170 cm |
| Dachform: Satteldach |
| Dachneigung: 25° |
OTT HAUS – Gesund wohnen
Das besondere an jedem OTT HAUS ist ein angenehmes Raumklima, weil die Wände Feuchtigkeit aufnehmen und wieder abgeben als würden sie atmen. Jedes Haus ist energiesparend gebaut, auf Wunsch kann auch eine höhere Energie-Effizienzklasse gewählt werden, die durch Fördermittel gedeckt wird.
Hier finden Sie 8 gesunde Gründe, mit uns zu bauen
Sie möchten mehr erfahren?
Kontaktieren Sie uns oder kommen Sie vorbei.

OTT HAUS, Untere Lußstr. 27, 88271 Wilhelmsdorf, mail@otthaus.de













