Kompakte und helle Räume
Dieses Haus schenkt viel Raum für eine Familie mit 2-3 Kindern, die sich erlebt. Auch finanziell ist es eine „familienfreundliche“ Variante. Ein Flachdachanbau verwandelt das schlichte Einfamilienhaus in eine elegante Komposition. Der überdachte Terrassenbereich ist eine tolle Verbindung zwischen Innen- und Außenraum. Im Haus wurde der Schwerpunkt auf das Zusammensein der Familie und damit auf den Wohn- und Essbereich gelegt, wo man auch mal die Hausaufgaben am Tisch machen kann.
Das sagen die Bauherren:
„Die Holzbauweise hat uns überzeugt.“
Auf einen Blick
| Anzahl Zimmer: 4 |
| Hausgrundfläche: 131,00 m2 |
| Nettogrundfläche (DIN 277): 130,30 m2 |
| Erdgeschoss: 69,80 m2 |
| Dachgeschoss: 60,50 m2 |
| Kniestock 140 cm |
| Dachform: Satteldach |
| Dachneigung: 30° |
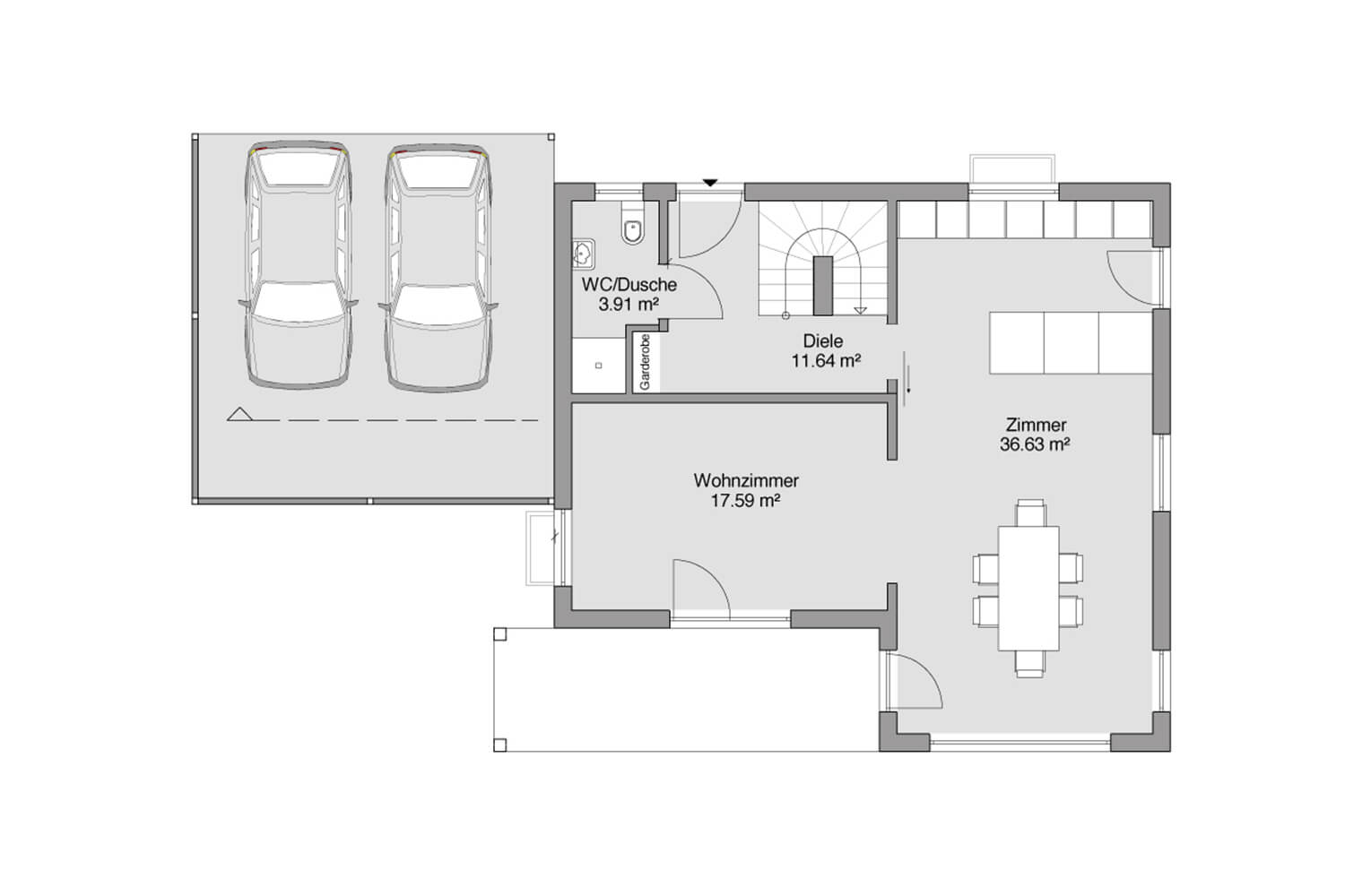
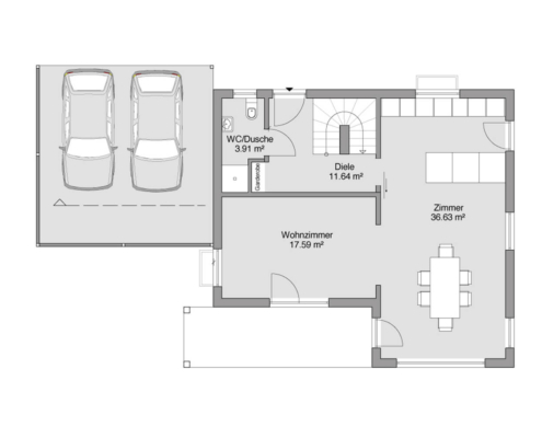
Erdgeschoss
Dachgeschoss
OTT HAUS – Gesund wohnen
Das Besondere an jedem OTT HAUS ist ein angenehmes Raumklima, weil die Wände Feuchtigkeit aufnehmen und wieder abgeben als würden sie atmen. Jedes Haus ist energiesparend gebaut, auf Wunsch kann auch eine höhere Energie-Effizienzklasse gewählt werden, die durch Fördermittel gedeckt wird.
Hier finden Sie 8 gesunde Gründe, mit uns zu bauen
Sie möchten mehr erfahren?
Kontaktieren Sie uns oder kommen Sie vorbei.

OTT HAUS, Untere Lußstr. 27, 88271 Wilhelmsdorf, mail@otthaus.de












