Wohnkomfort für jedes Alter
Mit diesem Bungalow wurde „stufenloser Wohnkomfort“ in seiner schönsten Form verwirklicht. Wer auch in Richtung „Vorsorgehaus“ denkt, dem bietet dieser Bungalow alle Wohn- und Lebensräume auf einer Ebene. Sehr ansprechend ist das Bad mit der Nischenlösung der barrierefreien Dusche, die so dem Vorsorgedenken Tribut zollt. Große Fenster sorgen für helle, luftige Räume und bringen Ihnen den Sonnenschein und die Natur ins Haus.
Das sagen die Bauherren:
„Unser neues Zuhause sollte zukunftsorientiert und altersgerecht sein.“
Auf einen Blick
| Anzahl Zimmer: 3 |
| Hausgrundfläche: 135,98 m2 |
| Nettogrundfläche (DIN 277): 119,28 m2 |
| Erdgeschoss: 119,28 m2 |
| Dachform: Satteldach |
| Dachneigung: 27° |
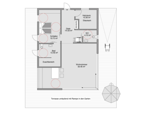
Erdgeschoss
Dachgeschoss
OTT HAUS – Gesund wohnen
Das Besondere an jedem OTT HAUS ist ein angenehmes Raumklima, weil die Wände Feuchtigkeit aufnehmen und wieder abgeben als würden sie atmen. Jedes Haus ist energiesparend gebaut, auf Wunsch kann auch eine höhere Energie-Effizienzklasse gewählt werden, die durch Fördermittel gedeckt wird.
Hier finden Sie 8 gesunde Gründe, mit uns zu bauen
Sie möchten mehr erfahren?
Kontaktieren Sie uns oder kommen Sie vorbei.

OTT HAUS, Untere Lußstr. 27, 88271 Wilhelmsdorf, mail@otthaus.de












